OBRA NOVA:
40 habitatges de promoció pública
La Floresta, Sant Cugat del Vallès.
Finalització: Pendent
           
              
              


Maqueta del conjunt


Façana Sud


Façana Nord




Secció tipus



Planta general de cobertes



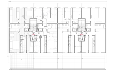
Planta habitatges edifici tipus