| HABITATGE UNIFAMILIAR AÏLLAT
A CAN CORTÉS. 2008 Entorn natural a la serra de
Collserola amb terreny de fortes pendents .
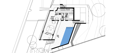
La disposició tipològica en forma de "L" juntament amb el tractament envidrat de la volumetria més propera al carrrer, permeten minimitzar l'impacte edificat i alhora generar una plataforma posterior útil per a les peces habitables de la planta baixa (sala, cuina i despatx). Aquesta plataforma generada és entesa com una extensió de l'espai interior. En la planta primera, a l'interior del volum perpendicular al carrer, s'ubiquen els dormitoris i altres peces més opaques. |
![]()
![]()
![]()
|