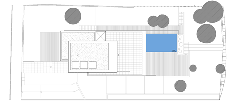
| HABITATGE UNIFAMILIAR AÏLLAT
A BELLATERRA. 2004 Parcel.la rectangular,
amb edificacions veïnes molt properes.
L'ubicació de escala juntament amb el pati, en una posició central, permeten generar l'organització de la distribució dels espais. Així, el garatge soterrat s'articula mitjançant l'escala amb la zona de dia, el despatx de la zona d'accés amb els dormitoris i l'estudi amb la terrassa superior. En el joc de volums de formigó, les dues cares laterals es mostren opaques, tancant-se a les edificacions veïnes. En les altres, el vidre permet que s'obrin per rebre la llum i ampliar l'espai interior. |
![]()
![]()
![]()
![]()
|